Vollzug des Baugesetzbuches (BauGB)

4. Änderung und Erweiterung des Bebauungsplanes „Vogling-Prüll“ mit integriertem Grünordnungsplan; Bekanntmachung des Satzungsbeschlusses und Inkrafttreten
Die Gemeinde Siegsdorf hat für die 4. Änderung und Erweiterung des Bebauungsplanes „Vogling-Prüll“ das nach dem BauGB vorgeschriebene Verfahren durchgeführt. Der Gemeinderat hat in seiner Sitzung vom 16.09.2025 den Bebauungsplan gemäß § 10 Abs. 1 BauGB in der Fassung vom 05.09.2025 nebst Begründung und Umweltbericht gleichen Datums als Satzung beschlossen. Dieser Beschluss wird hiermit gemäß § 10 Abs. 3 des BauGB ortsüblich bekannt gemacht. Mit dieser Bekanntmachung tritt die Bebauungsplanänderung in Kraft.
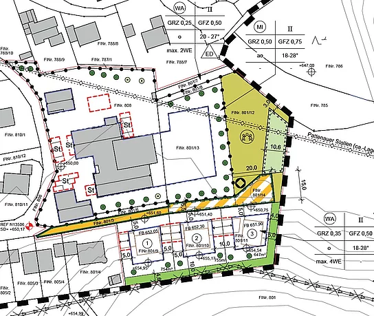
Der Geltungsbereich grenzt an die Voglinger Straße an und umfasst die Grundstücke mit den Fl. Nrn. 808, 801/6, 801/3, 801/7, 801/8, 801/13, 801/12, 801/14, 801/9, 801/10 und 801/11 jeweils der Gemarkung Vogling. Die genaue Abgrenzung des Geltungsbereiches ist der nachfolgenden Plandarstellung zu entnehmen.
Die 4. Änderung und Erweiterung des Bebauungsplanes „Vogling-Prüll“ mit integriertem Grünordnungsplan einschließlich Begründung, Umweltbericht und zusammenfassender Erklärung über die Art und Weise, wie die Umweltbelange und die Ergebnisse der Öffentlichkeits- und Behördenbeteiligung in dem Bauleitplan berücksichtigt wurden, und aus welchen Gründen der Plan nach Abwägung mit den geprüften, in Betracht kommenden anderweitigen Planungsmöglichkeiten gewählt wurde, kann von jedem im Rathaus der Gemeinde Siegsdorf im Vorzimmer der Bereichs - Planen und Bauen -, 1. OG, Rathausplatz 1, 83313 Siegsdorf, von Montag bis Freitag von 8:00 bis 12:00 Uhr, Donnerstag, zusätzlich von 14:00 bis 18:00 Uhr eingesehen werden und jeder kann über den Inhalt Auskunft verlangen.
Auf die Voraussetzungen für die Geltendmachung der Verletzung von Verfahrens- und Formvorschriften und von Mängeln der Abwägung sowie die Rechtsfolgen des § 215 Abs. 1 BauGB wird hingewiesen. Unbeachtlich werden demnach
- eine nach § 214 Abs. 1 S. 1 Nr. 1 bis 3 BauGB beachtliche Verletzung der dort bezeichneten Verfahrens- und Formvorschriften,
- eine unter Berücksichtigung des § 214 Abs. 2 BauGB beachtliche Verletzung der Vorschriften über das Verhältnis des Bebauungsplans und des Flächennutzungsplans,
- nach § 214 Abs. 3 S. 2 BauGB beachtliche Mängel des Abwägungsvorgangs und
- nach § 214 Abs. 2a BauGB im beschleunigten Verfahren beachtliche Fehler,
wenn sie nicht innerhalb eines Jahres seit Bekanntmachung des Bebauungsplans schriftlich gegenüber der Gemeinde geltend gemacht worden sind; Der Sachverhalt, der die Verletzung oder den Mangel begründen soll, ist darzulegen. Außerdem wird auf die Vorschriften des § 44 Abs. 3 Satz 1 und 2 sowie Abs. 4 BauGB hingewiesen. Danach erlöschen Entschädigungsansprüche für nach den §§ 39 bis 42 BauGB eingetretene Vermögensnachteile, wenn nicht innerhalb von drei Jahren nach Ablauf des Kalenderjahres, in dem die Vermögensnachteile eingetreten sind, die Fälligkeit des Anspruches herbeigeführt wird.
Siegsdorf, 16.09.2025
Gemeinde Siegsdorf
gez. Kamm, 1. Bürgermeister