Sprungziele

Nachrichten

Festsetzung des Überschwemmungsgebietes an der Weißen Traun

  • Amtliche Bekanntmachung

Mit Bekanntmachung im Amtsblatt am 13.02.2026 hat das Landratsamt Traunstein das Überschwemmungsgebiet an der Weißen Traun festgesetzt. Grundlage für die Ermittlung des Überschwemmungsgebietes ist das 100-jährliche Hochwasser. Die Karten zum Überschwemmungsgebiet können im Landratsamt Traunstein und in den Verwaltungsräumen der Gemeinde Siegsdorf während der Dienststunden eingesehen werden. Die Überschwemmungsbereiche finden Sie auch online unter dem Stichwort „Festgesetzte…

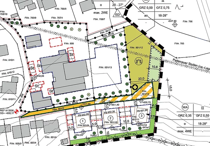
Vollzug des Baugesetzbuches (BauGB)

  • Amtliche Bekanntmachung

Aufstellung des Bebauungsplanes „Siegsdorf-Öd-Ost“ mit integriertem Grünordnungsplan im beschleunigten Verfahren nach § 13a BauGB ohne Durchführung einer Umweltprüfung; Bekanntmachung des Satzungsbeschlusses und Inkrafttreten des Bebauungsplanes gem. § 10 Abs. 3 BauGB

Müllabfuhr im März 2026

  • Amtliche Bekanntmachung

Restmüllabfuhr Gebiet 112.03.2026 und 26.03.2026Gebiet 213.03.2026 und 27.03.2026Gebiet 305.03.2026 und 19.03.2026Gebiet 406.03.2026 und 20.03.2026Gebiet 511.03.2026 und 25.03.2026 Die wöchentliche Leerung der 1,1 cbm Tonnen erfolgt jeweils mit dem Bezirk, der oben angegeben ist. Auf der neuen Website des Landratsamtes www.traunstein.bayern, Stichwort „Abfuhrkalender“ kann ein individueller Kalender, erstellt werden. Dies ist auch für die 1,1 cbm Müllgroßbehälter möglich. Zusätzlich gibt es…

Urlaubszeit ist Reisezeit!

  • Amtliche Bekanntmachung

Für die Beantragung eines neuen Reisepasses/Personalausweises benötigen Sie: - Gültiges Ausweisdokument (Personalausweis, Reisepass) - Aktuelles biometrisches Lichtbild* - Bei Personen unter 16 Jahren (beim Reisepass unter 18 Jahren) ist der Antrag durch einen Sorgeberechtigten zu stellen und im Regelfall die Zustimmungserklärung beider Erziehungsberechtigten erforderlich ⇒ Diese ist auf unserer Homepage bei den Formularen erhältlich. Die Beantragung von Ausweis-/Passdokumenten kann nur…

Landwirtschaftszuschuss

  • Amtliche Bekanntmachung

Die Gemeinde Siegsdorf gewährt landwirtschaftlichen Betrieben als kleine Entschädigung für die Beeinträchtigungen ihrer Flächen durch z.B. Stromleitungen, Wanderwege, Langlaufloipen oder Splittresten einen sog. Landwirtschaftszuschuss in Höhe von 5,11 €/ha ab einer bewirtschafteten Fläche von 3 ha. Sind Sie mit Ihrem Betrieb bisher nicht berücksichtigt worden, können Sie formlos bis zum 30.06.2026 einen Antrag in der Gemeinde Siegsdorf stellen. Die eigene Bewirtschaftung ist darin glaubhaft…

Filter